High Beach, Off Beach Road East, Felixstowe

£499,950
Sold STC
4
3
3

Property Summary

We are pleased to offer for sale this rarely available well presented four bedroom townhouse, which is located in much sought after area of Felixstowe, within a short walk of the seafront, the property boasts two balconies offering stunning sea views and views over Bath Road tennis courts. Offered for sale with no onward chain.

Full Details

Entrance Door: Leading to:-

Hallway: Two x radiators, wood flooring, With stairs to first floor, door leading to rear garden and doors leading to:-

Cloakroom: Vanity wash basin. w.c., built in cupboard and shelving, radiator and tiled flooring.

Storage Room: Door leading to front courtyard garden.

Utility Room: 8'6" x 6'8" (2.59m x 2.03m), Base & wall cupboards and work surfaces, radiator, window to rear aspect.

Sitting Room: 14'2" x 13'1" (4.32m x 3.99m), Wood flooring, doors leading to rear garden, gas stove fire, two x radiator, wood flooring.

Kitchen/Diner: 14'2" x 11'4" (4.32m x 3.45m), Modern fitted kitchen with 1 1/2 bowl sink drainer with cupboard under, further range of base units, matching eye level wall cupboards, work surfaces, tiled splashbacks, wood flooring, Lacanche Aga style cooker eith five ring hob, window to front aspect, With pantry cupboard.

Further Kitchen: 13'1" x 4'9" (3.99m x 1.45m), Built in base units, work surface. Space for fridge freezer, space and plumbing for washing machine. Door leading to courtyard garden, window to front aspect.

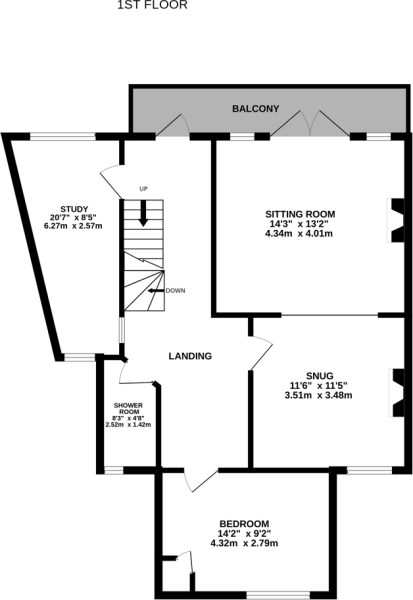
First Floor Landing: Stairs leading to second floor accommodation, door leading to rear garden and with doors leading to:-

Lounge: 14'3" x 13'2" (4.34m x 4.01m), Doors leading to balcony, wood flooring, fireplace with stove fire.

Snug: 11'6" x 11'5" (3.51m x 3.48m), Fireplace, wood flooring, window to front aspect, radiator.

Bedroom: 14'2" x 9'2" (4.32m x 2.79m), Fireplace, built in single wardrobe, wood flooring, window to front aspect.

Study: 20'7" x 8'5" (6.27m x 2.57m), Windows to front and rear aspect.

Shower Room: Shower cubicle, wash basin and w.c. tiled flooring, window front aspect.

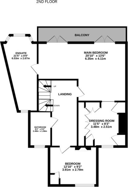
Second Floor Landing: Stairs leading to third floor accommodation and with doors leading to:-

Bedroom: 12'10" x 9'2" (3.91m x 2.79m), Wood flooring, window to front aspect, radiator, built in single wardrobe.

Master Bedroom with ensuite and dressing room: 20'10" x 13'6" (6.35m x 4.11m), Wood flooring, two x radiators, two doors to leading to balcony.

Outside: The front of the property benefits with two small courtyard gardens. The rear consists of Lawn, shingle and patio areas with an outside store cupboard.

Dressing Room: 11'5" x 8'3" (3.48m x 2.51m), Built in wardrobes, fire place, wood flooring, window to front aspect.

Ensuite: 21'5" x 8'9" (6.53m x 2.67m), Bath, shower cubicle, wash basin and w.c., windows to front and rear aspect, tiled flooring, two x radiators.

Bathroom: 8'2" x 5'2" (2.49m x 1.57m), Bath with shower attachment, wash basin, w.c, tiled flooring, window to front aspect.

Third Floor Bedroom: 17'1" x 16'4" (5.21m x 4.98m), Wood flooring, radiator, door leading to small balcony.

Notes: Council Tax Band D

Floorplans

EPCs

Property Features

  • No Onward Chain
  • Stunning Sea Views
  • Four Bedrooms
  • Three/Four Bedrooms
  • Three bathrooms
  • Desired Location
  • Kitchen
  • Utility, Study & Storage Rooms
  • Views Over-Looking Bath RoadTennis Courts
4
3
3

Property Features

  • No Onward Chain
  • Stunning Sea Views
  • Four Bedrooms
  • Three/Four Bedrooms
  • Three bathrooms
  • Desired Location
  • Kitchen
  • Utility, Study & Storage Rooms
  • Views Over-Looking Bath RoadTennis Courts
Selling
Buying
Letting
Landlords
About Vikings
Your calculation
Stamp Duty Due: Band Rate Amount Total Up to
Please note: This calculator is provided as a guide only on how much stamp duty land tax you will need to pay in England and Northern Ireland. It assumes that the property is freehold and for residential purposes.
We use cookies on this site to enhance your user experience
By clicking the Accept button, you agree to us doing so.
More info on our cookie policy